Menuiseries ALU

Caractéristiques techniques des menuiseries ALIPLAST :

– Fenêtre de la gamme  IMPERIAL 65mm et SUPERIAL 75 mm disponibles en 2 versions (standard et ouvrant caché)

– Baie vitrée coulissants de la gamme VISIOGLIDE, MODERNSLIDE et SLIDE +

Il existe un large panel (dans le nuancier RAL) de coloris disponible en couleur mat, brillant ou encore sablé/structuré

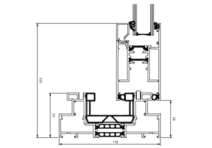
Coupe des sections

Imperial 65

Imperial 65 Ouvrant Caché

Superial 75

Superial 75 Ouvrant Caché

Visoglide

Modern Slide